📌 Kurz & Knapp
| Merkmal | Details |
|---|---|
| Objekttyp | Einfamilienhaus / Zweifamilienhaus |
| Wohnfläche | ca. 212 m² |
| Grundstück | ca. 1.347 m² |
| Zimmer | 7 Zimmer |
| Bäder | Vollbad (EG), Duschbad (OG), Gäste-WC (EG & OG), Dusche im Keller |
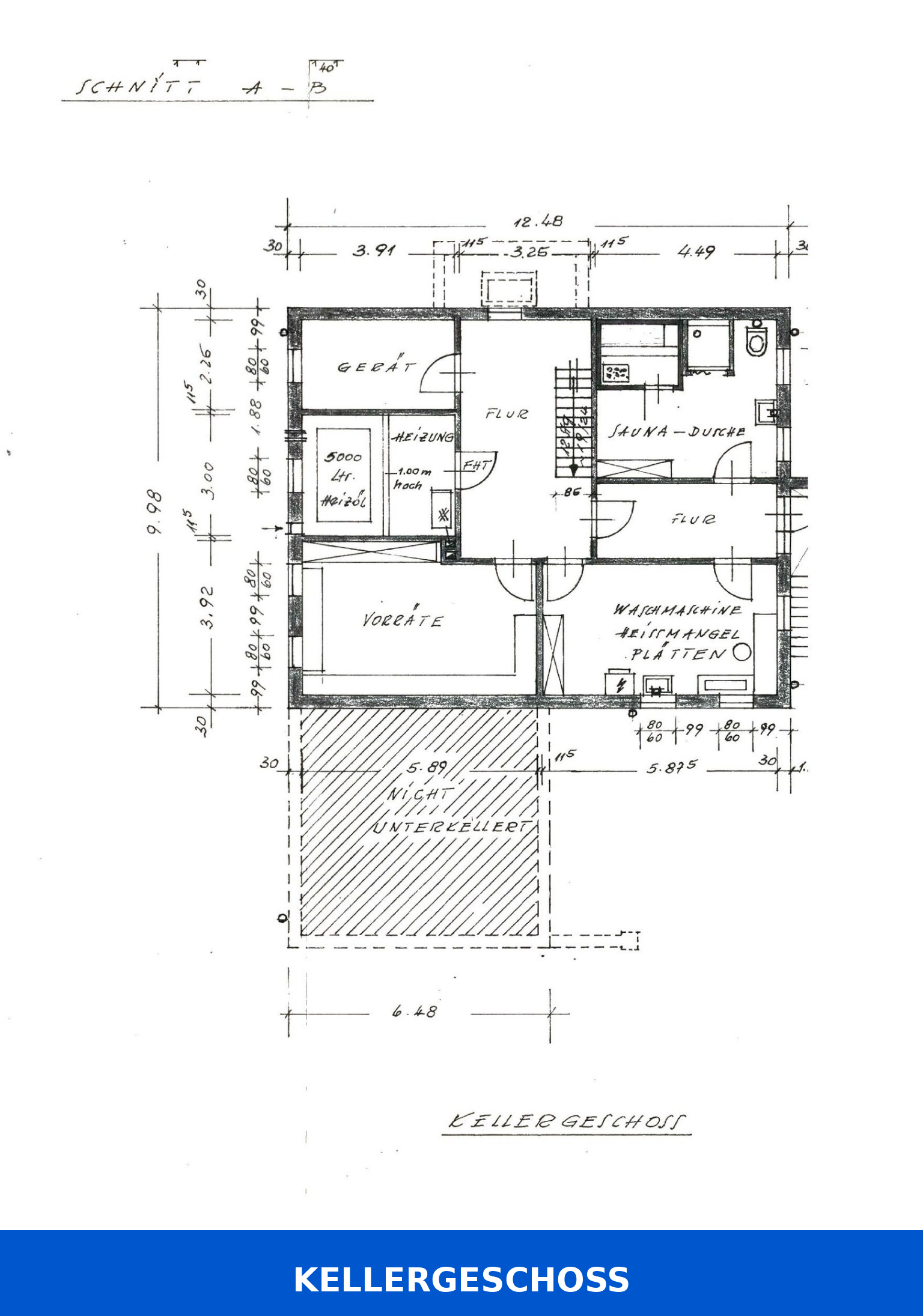
| Keller | Teilunterkellerung (ca. 85 %), überwiegend beheizt inkl. geräumiger Bar! |
| Garagen | 4 (1× vermietet) |
| Internet | Glasfaser |
| Nutzungschance | OG voll ausgebaut – ideal für Teilvermietung oder Generationenmodell |
| Kaufpreis | 378.000 € |
📄 Exposé
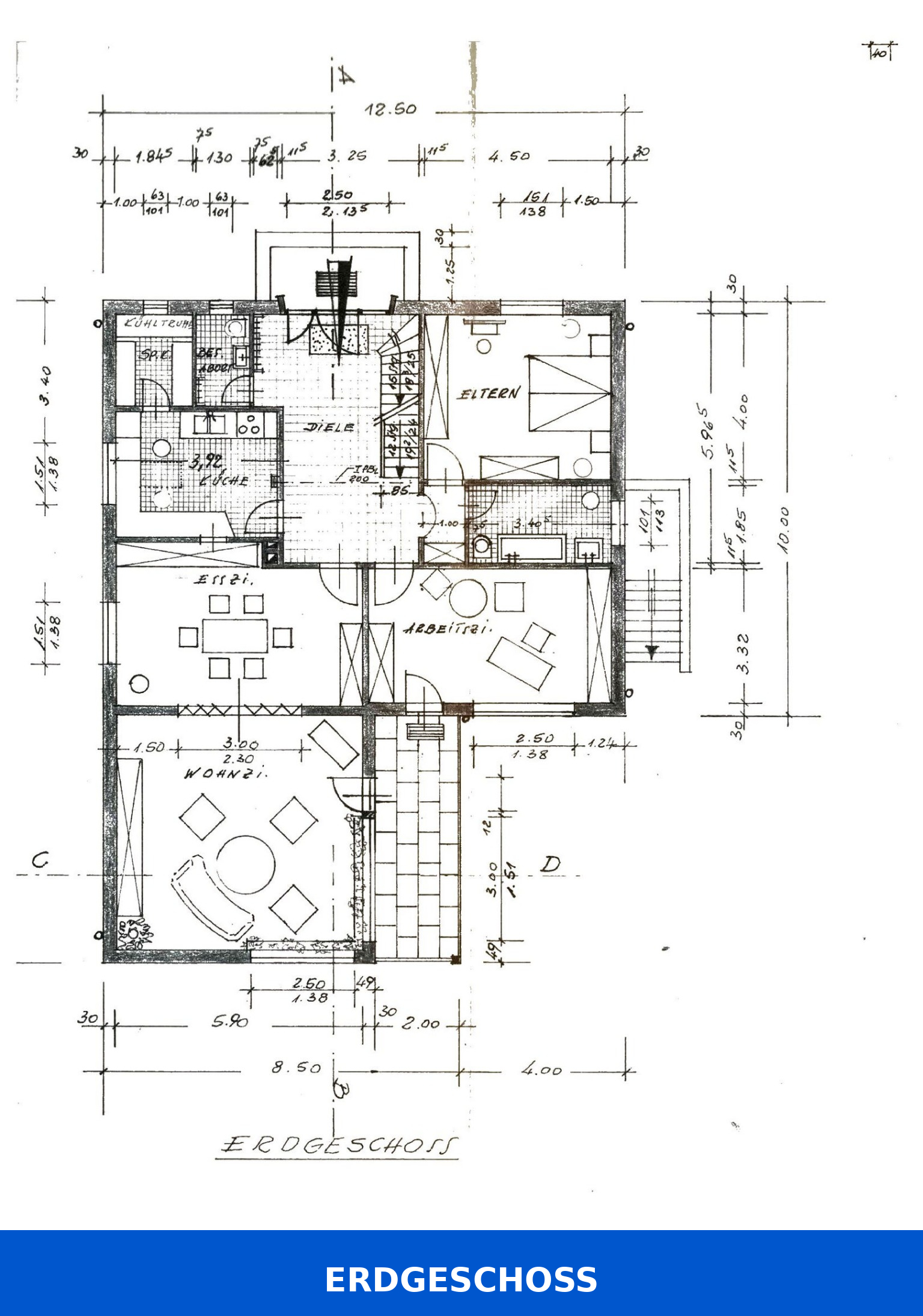
🏠 Eckdaten zum Haus
| Merkmal | Details |
|---|---|
| Baujahr | 1972 |
| Wohnfläche | ca. 212 m² |
| Nutzfläche | ca. 200 m² |
| Gesamtfläche | ca. 414 m² |
| Kellerfläche | ca. 102 m² |
| Grundstücksgröße | ca. 1.347 m² |
| Heizung | Ölheizung (Bj. 1972), Brenner von 1987 10.000 Liter Erdtank vorhanden |
| Fenster | Holzfenster, größtenteils original (1972) Außenjalousien vorhanden, teils elektrisch betrieben |
| Dach | Doppelwalmdach, originale Eindeckung (1972) |
| Elektrik | 3-adrige Leitungen (L, N, PE) stichprobenartig geprüft. Sicherungskästen aus 1972. |
| Bäder / Wasserleitungen | Originalzustand von 1972 |
| Keller | Teilunterkellerung (ca. 85 %) inkl. Kellerbar & sogar überwiegend beheizt. |
| Decken | Keller–EG: Betondecke EG–DG: ca. 20 cm Holzbalkendecke, aufgedielt |
| Internet | Glasfaser |
📐 Grundrisse
💡 Warum dieses Haus?
- ✅ Direkt vom Eigentümer – ohne Maklerprovision (Sie sparen rund 13.500 €)
- ✅ Sofort verfügbar & in gepflegtem Zustand
- ✅ Deutlich günstiger als ein vergleichbarer Neubau
- ✅ Mehr als doppelt so viel Grundstücksfläche wie heutige Neubauten (1.347 m² statt 500 m²)
- ✅ Leicht erhöhtes Haus auf großzügigem Grundstück – mit angenehmem Abstand zu den Nachbarn
- ✅ Solide Bauqualität aus den 70ern – langlebig und massiv gebaut
- ✅ Ausgebautes Dachgeschoss – ideal als Einliegerwohnung oder Homeoffice
- ✅ Viel Nutzfläche dank ca. 85 % Unterkellerung
- ✅ 4 Garagen mit Werkstatt und Holzofen
- ✅ Ruhiges Dorfleben ohne Durchgangsverkehr
- ✅ Strandnah – nur 2,4 km bis zur Ostsee
🗺️ Alles in der Nähe
- 🏖️ Strand (kurtaxefrei) nur 2,4 km – in ca. 6 Minuten bequem mit dem Rad 🚲
- 🚸 Kindergarten im Ort – nur 270 m Fußweg
- 🏫 Grundschule: 5,0 km – ca. 7 Minuten mit dem Auto
- 🛒 Lidl: 3,7 km – Einkauf in ca. 4 Minuten mit dem Auto
- 🏥 Apotheke: 4,5 km – Medikamente in ca. 6 Minuten erreichbar
- 👨⚕️ Arztpraxis: 4,5 km – schnelle medizinische Versorgung in ca. 5 Minuten
- 🛠️ Baumarkt: 5,8 km – alles für Haus & Garten in ca. 7 Minuten
- 🚍 Gute Busverbindungen in die Probstei, nach Schönberg und Kiel
👨👩👧👦 Für wen ist das Haus ideal?
Dieses Haus passt perfekt für Familien, die viel Platz wünschen – oder für Paare mit dem Traum von Ruhe, Natur und Eigenständigkeit. Auch ideal als Mehrgenerationenhaus oder zur Teilvermietung.
🕵️♂️ Besichtigung & Ablauf
Nach Ihrer Anfrage melden wir uns umgehend und klären die notwendigen Details. Bei einem Besichtigungswunsch führen wir eine Vorabqualifizierung durch.
🙋 Über den Verkäufer
Mein Name ist Torben Mundt. Als Miteigentümer des Hauses betreue ich den Verkauf persönlich in Eigenregie. Die gesamte Vermarktung – von den Fotos über die Onlineanzeigen bis hin zur Website und dem Werbebanner vor Ort – habe ich selbst gestaltet.
„Manners maketh man“ – der Umgang macht den Menschen. Ich schätze Menschen, die verbindlich, zielorientiert und respektvoll auftreten. Ein höflicher, klarer Austausch auf Augenhöhe ist für mich selbstverständlich – und bildet die gegenseitige Grundlage für jedes Gespräch.
Passt das für Sie? Dann freue ich mich auf Ihre Anfrage!